Poisson (71600)

Maison 6 pièce(s) 4 chambre(s) 165 m²

1
1534 m²
1
Réf ER467

Maison de charme avec dépendances et grand terrain arboré

À découvrir sans tarder, ROCHAT vous propose à la vente cette maison d’habitation pleine de caractère, idéale pour une famille ou un projet de vie à la campagne, alliant confort, potentiel d’aménagement et beaux volumes extérieurs.

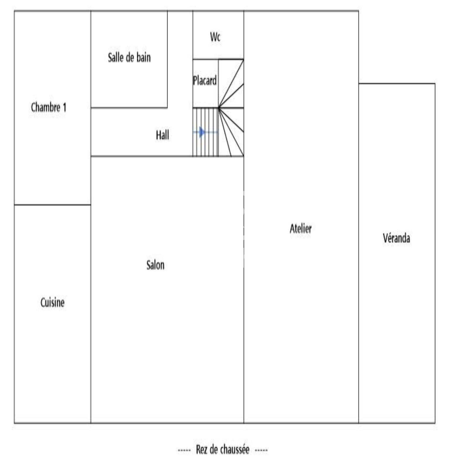
La maison d'une surface de 165m2 se compose :

- d'un rez de chaussée fonctionnel et chaleureux : une cuisine séparée, meublée et équipée, parfaite pour les repas du quotidien, un séjour lumineux au charme authentique avec carrelage des année 30 et cheminée en pierre équipée d'un poêle à bois pour une ambiance chaleureuse, une chambre avec placards, une salle de bain (baignoire et vasque lavabo) et WC indépendant complètent cet espace. Vous profiterez également d'un grand espace atelier (40m2) avec une belle baie vitrée et d'une véranda (avec chauffage) de 20m2 avec vue sur les extérieurs sans vis à vis.

En bonus : au-dessus de l'atelier se trouve une ancienne étable non aménagée avec trappe d’accès, offrant la possibilité de créer une chambre supplémentaire avec salle d’eau d’environ 30 m².

- à l'étage : un palier distribue deux chambres + une pièce mansardée attenante offrant des possibilités de rangement (possibilité troisième chambre)

Concernant les extérieurs : deux bâtiments séparés servant de dépendances (stockage bois, matériels de jardin, récupérateur d'eau, atelier) - potentiel d'aménagement. Un terrain clos et arboré, idéal pour les enfants, le jardinage ou simplement profiter de la nature. Un puit.

Aspects techniques : construction en pisé, toiture refaite en partie, menuiserie aluminium double vitrage sur la chambre du rez de chaussée, deux chambres à l'étage et salle de bain, menuiserie aluminium triple vitrage côté atelier et véranda, menuiserie bois simple vitrage côté séjour et palier, porte d'entrée en bois, assainissement individuel (fosse septique)

Chauffage : chaudière fioul avec radiateurs + poêle à bois, salle de bain équipée d’un sèche-serviette électrique supplémentaire

Production d’eau chaude : Chauffe-eau électrique sous évier de la cuisine + Chaudière fioul pour le reste de la maison

Les Points forts :

-Beaux volumes
-Caractère ancien conservé
-Potentiel d'aménagement important
-Cadre verdoyant et calme


Les informations sur les risques auxquels ce bien est exposé sont disponibles sur le site Géorisques

Bilan énergétique

Diagnostics énergetiques
A propos de ce bien Caractéristiques de ce bien
  • Surface 165 m²
  • terrain 1 534 m²
  • 4 chambre(s)
  • 1 salle(s) de bain
  • construit en 1865
  • cuisine séparée (équipée)
  • 1 garage(s)
  • 1 niveau(x)
  • arboré

Composition

Composition de ce bien

Rez-de-chaussée

  • salon/sejour
  • chambre
  • cuisine
  • véranda
  • Atelier
  • salle de bain
  • WC

Etage 1

  • chambre
  • chambre
  • chambre
  • grenier aménageable
  • Dégagement / Palier

Financier

Informations financières
Les honoraires d'agence seront intégralement à la charge du vendeur  
Taxe foncière annuelle 502 €

Autour du bien

Découvrez le quartier

Simulation

Calcul des mensualités
* Champs obligatoires
Elodie ROSENZWEIG Négociatrice