0

Duplex avec 3 terrasses à Francheville

Francheville (69340)
Réf : RA472-1

À Francheville, à la limite de Craponne – Superbe Duplex en Dernier Étage avec Balcon et Deux Terrasses

Idéal colocation – 2 chambres, 1 salle d’eau et une salle de bains, 3 espaces extérieurs

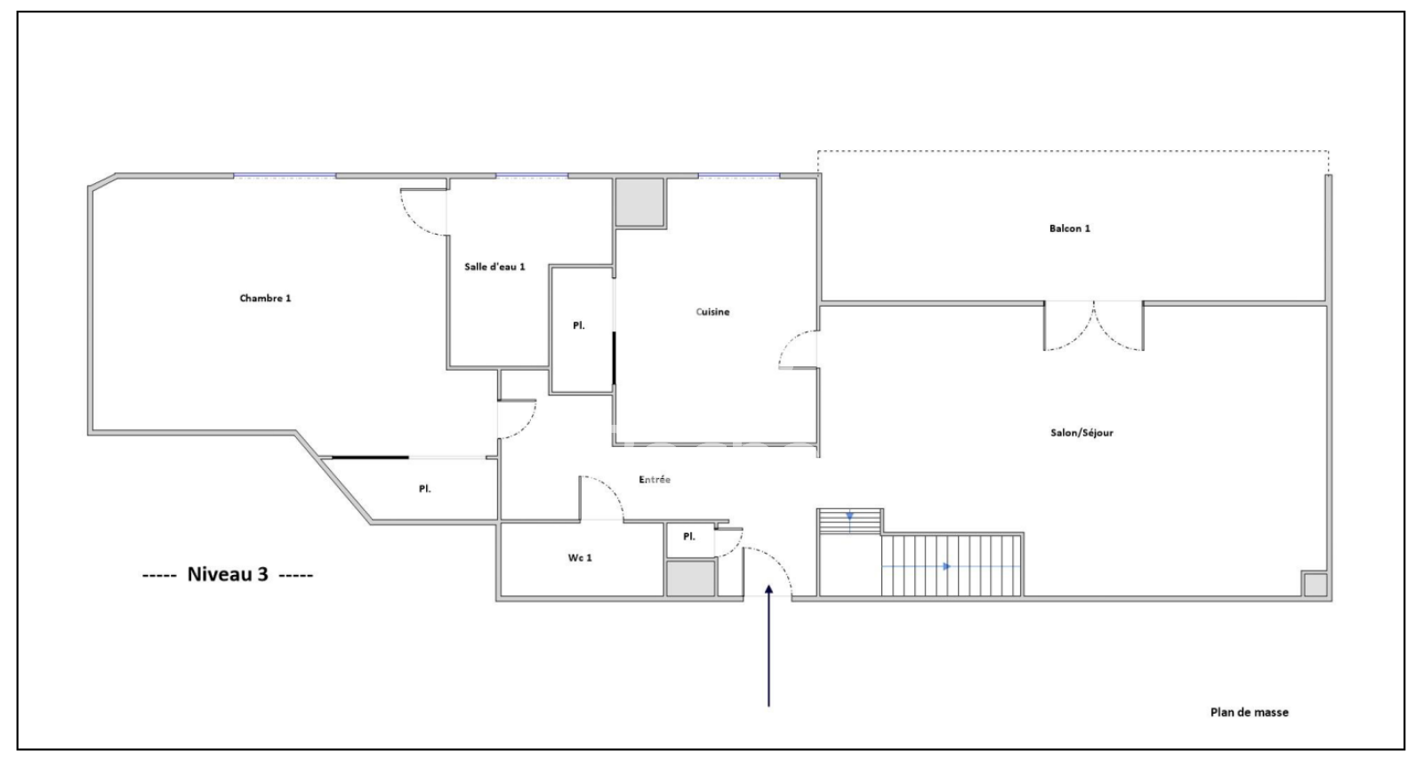
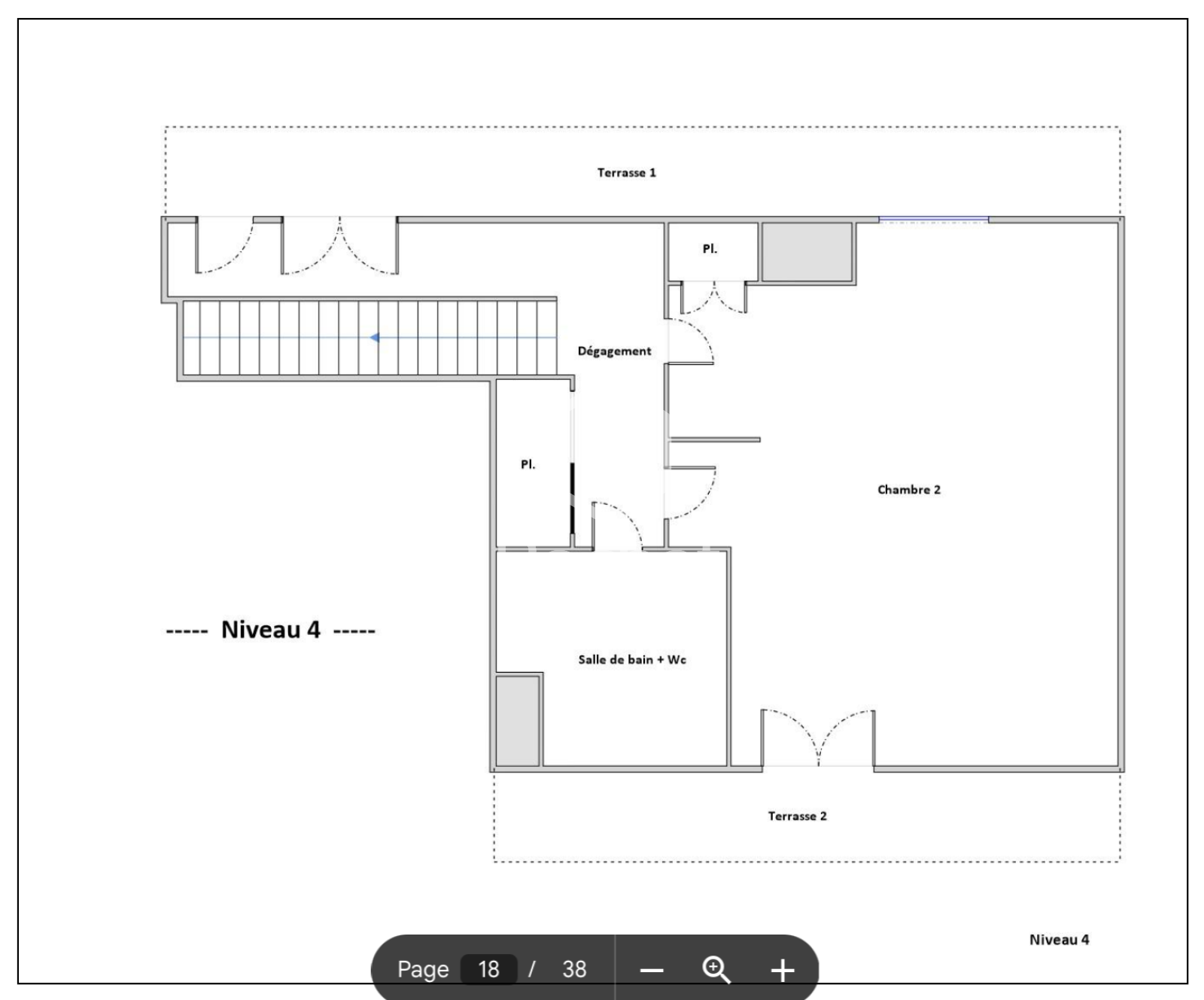
Situé à la limite de Craponne, sur la commune de Francheville, ce bel appartement en duplex au dernier étage (3e étage avec ascenseur) vous séduira par sa luminosité, son calme, ses espaces extérieurs généreux et son parc arboré.

Dans une copropriété bien entretenue construite en 2005, ce bien rare sur le secteur se prête parfaitement à un projet d’investissement locatif ou de colocation, grâce à une configuration optimale : une chambre à chaque niveau, chacune disposant d’un accès à une salle d’eau et à un WC.

Caractéristiques principales :

    • Dernier étage avec ascenseur
    • Duplex avec une chambre à chaque niveau
    • Séjour lumineux ouvrant sur un balcon de 10 m
    • Cuisine ouverte
    • Deux chambres dont l'une donnant sur terrasse privative de 7 m2
    • Une salle d’eau en bas et une salle de bains en haut
    • Deux WC, un par niveau

  • Surface intérieure : 77 m² (surface plancher)
  • Surface totale à vivre avec extérieurs : 108 m²
  • Double vitrage pour un confort acoustique et thermique optimal

À savoir :

  • Taxe foncière : 1 471 € / an
  • Charges de copropriété maîtrisées 160 ¤/mois (77 lots)
  • Aucune procédure en cours
  • Diagnostic énergétique réalisé le 4 mars 2025
  • Prix : 360 000 € – Honoraires à la charge du vendeur

Ce duplex au dernier étage avec balcon et terrasses est une opportunité rare à Francheville, que ce soit pour y habiter, investir, ou mettre en place une colocation confortable et équilibrée, avec ses deux espaces nuit bien séparés.



Les informations sur les risques auxquels ce bien est exposé sont disponibles sur le site Géorisques
Prix du bien 360 000 €
Pièce(s) 4
Chambre(s) 2

Caractéristiques du bien

Caractéristiques Valeurs
Code postal 69340
Surface habitable (m²) 77,20 m²
Surface loi Carrez (m²) 77,20 m²
Nombre de chambre(s) 2
Nombre de pièces 4
Etage 3
Nombre de niveaux 4
Ascenseur OUI
Vue Vue sur monts du lyonnais
Nb de salle de bains 1
Nb de salle d'eau 1
Cuisine Séparée
Type de cuisine Equipée
Mode de chauffage Electrique
Type de chauffage TRAD_TYPE_CHAUFF_AIR_EAU
Format de chauffage Individuel
Interphone OUI
Balcon OUI
Terrasse OUI
Cave NON
Surface cave (m²) 5
Exposition Sud-Ouest
Année de construction 2004

Infos financières

Caractéristiques Valeurs
Prix de vente 360 000 €
Les honoraires d'agence seront intégralement à la charge du vendeur  
Charges 148 €
Taxe foncière annuelle 1 200 €

Bilans énergétiques

DPE GES
DPE en cours
Ce bien vous intéresse ?
Fieldset par défaut
Fieldset par défaut
Validation

* Champs obligatoires

Contacter l'agence
Validation
Les informations recueillies sur ce formulaire sont enregistrées dans un fichier informatisé par La Boite Immo agissant comme Sous-traitant du traitement pour la gestion de la clientèle/prospects de l'Agence / du Réseau qui reste Responsable du Traitement de vos Données personnelles. La base légale du traitement repose sur l'intérêt légitime de l'Agence / du Réseau. Elles sont conservées jusqu'à demande de suppression et sont destinées à l'Agence / au Réseau. Conformément à la loi « informatique et libertés », vous disposez des droits d’accès, de rectification, d’effacement, d’opposition, de limitation et de portabilité de vos données. Vous pouvez retirer votre consentement à tout moment en contactant directement l’Agence / Le Réseau. Consultez le site https://cnil.fr/fr pour plus d’informations sur vos droits. Si vous estimez, après avoir contacté l'Agence / le Réseau, que vos droits « Informatique et Libertés » ne sont pas respectés, vous pouvez adresser une réclamation à la CNIL. Nous vous informons de l’existence de la liste d'opposition au démarchage téléphonique « Bloctel », sur laquelle vous pouvez vous inscrire ici : https://www.bloctel.gouv.fr Dans le cadre de la protection des Données personnelles, nous vous invitons à ne pas inscrire de Données sensibles dans le champ de saisie libre.
Ce site est protégé par reCAPTCHA, les Politiques de Confidentialité et les Conditions d'Utilisation de Google s'appliquent.